振動篩12年生產廠家
過濾,除雜,分級

3000-3500元/臺
1440r/min轉速:
0.25kw功率:
500kg/h處理量:
特點:可增添清網球裝置,減少物料堵塞,全封閉結構,可防止物料篩分過程中產生的粉塵污染。
適用物料:0-400目粉末都可以篩選,0-600目漿液都可以過濾
選型要點——詳情咨詢
按材質分:不銹鋼(與物料接觸部分為不銹鋼價格便宜耐用),全不銹鋼
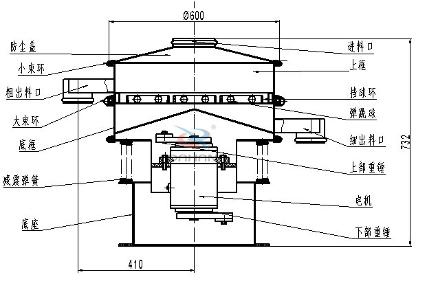
Φ600型振動篩該設備為600mm直徑一層兩出口不銹鋼旋振篩,子母網分離式網架,底座為碳鋼材質。價格便宜,換網容易、操作簡單、清洗方便。



| 型 號 | 直徑mm | 篩網面積m | 篩網規格(目) | 進料粒度mm | 振次rpm | 有效篩面直mm | 層數 | 功率Kw | 處理量(kg/h) |
| DH-600 | Φ600 | 0.24 | 2-500 | <Φ10 | 1500 | Φ560 | 1-5 | 0.25 | 500 |
直徑600振動篩是由直立式振動電機作為激振源,電機上、下兩端安裝有偏心重錘,將電機的旋轉運動轉變為水平、垂直、傾斜的三次元運動,再把這個運動傳遞給篩面進行篩分。調節上、下兩端的相位角,可以改變物料在篩面上的運動軌跡。

篩網更換視頻展示

新鄉大漢振動篩廠家可根據客戶需求設計特殊型號,無論物料是干是濕,是精細是粗糙,是比重大是比重輕,0-400目都可以篩選,不管是液態的,還是漿狀的0-600目都可以過濾。大漢振動篩系列產品同時配備專門的篩網清理裝置,把堵網率降到低,過網率和處理精度得以有效提高。
Copyright ? 2007-2019 振動篩廠家-新鄉市大漢振動機械有限公司 | All Rights Reserved 版權所有
備案序號:豫ICP備09002479號-1